Eladó Családi ház Budapest X. kerület - Kovakő utca

167 m2Alapterület 5 Szoba
190 000 000 Ft Ár
394708Azonosító
További adatok

409 m2 Telek

Kertre néző Kilátás

Új Állapot

Tégla Szerkezet

13 m2 Erkély/terasz

Hőszivattyú Fűtés

Dupla komfort Komfort

Saját garázs Parkolás

Kiváló Tömegközlekedés

Amerikai konyhás

Van Kertkapcsolat

2026 Építés éve

Déli Tájolás

Hitelkalkuláció – a részletekért kattintson valamelyik bank logójára!

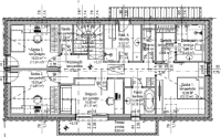
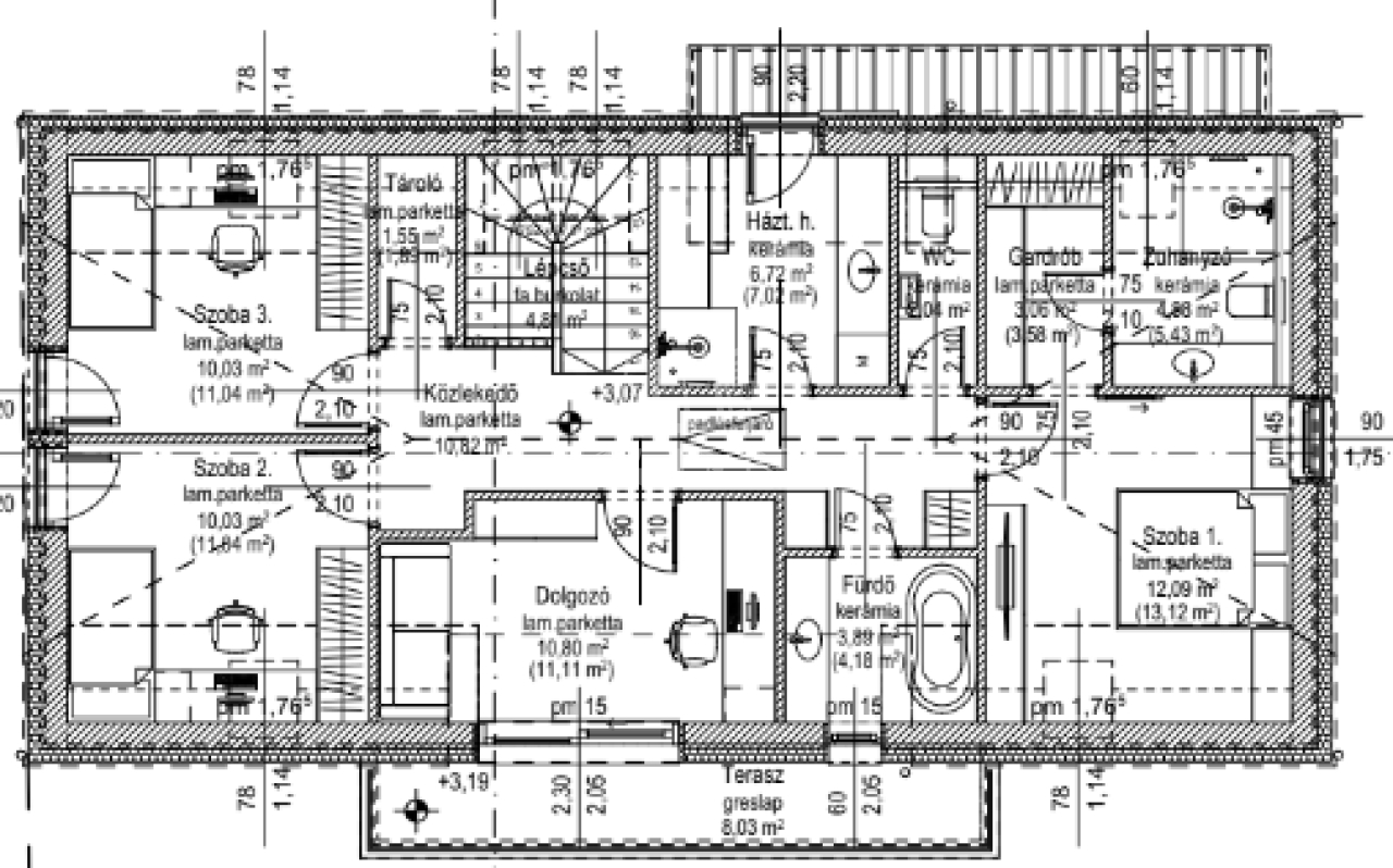
Eladó családi ház Budapest X. kerületében, a Panka közben, csendes, kertvárosi környezetben, magas műszaki tartalommal.

A nettó 145 m2 alapterületű otthonhoz 22,75 m2 garázs tartozik.
Önálló 409 m2-es telek!

Az ingatlan korszerű, időtálló szerkezetekkel épül: fő falazata 30 cm vastag POROTHERM 30 N+F téglából készül, a homlokzaton 15 cm vastag grafitos hőszigeteléssel. A lábazati részen XPS, míg a vasbeton szerkezetek külső oldalán kiegészítő EPS hőszigetelés biztosítja a kiváló energiahatékonyságot. A belső válaszfalak 10 cm vastag kerámia falazóelemekből épülnek.

A tető Terrán Zenit Max cserépfedést kap elegáns Moon szürke színben. A nyílászárók korszerű, háromrétegű hőszigetelt üvegezésű, fenyő színű műanyag szerkezetek, többpontos biztonsági bejárati ajtóval.

A burkolatok igényes kialakításúak: a hálószobákban laminált parketta, míg a vizes helyiségekben kerámia járólap és csempe készül. A külső terek is rendezettek, a gépkocsi beálló és a járdák térkő burkolatot kapnak.

A gépészet modern és energiatakarékos: levegő–levegő rendszerű hőszivattyú biztosítja a mennyezeti hűtés-fűtést, amelyet a nappali szinten padlófűtés egészít ki a maximális komfort érdekében.

Ez az ingatlan ideális választás mindazok számára, akik minőségi kivitelezésű, alacsony fenntartású, modern otthont keresnek a főváros egyik nyugodt részén.
ID: 394708
Molnár Katalin

Molnár Katalin

Hívjon bizalommal

+36-30-659-Mutasd!

További hirdetéseim

Ingatlaniroda
GDN Ingatlanhálózat - A&P Ingatlan
+36-70-743-9189

Küldjön üzenetet

Visszahívást kérek

Hasonló ingatlanok