Kiadó Üzlethelyiség Gárdony - Vízparthoz közel

38 m2Alapterület 0 Szoba
220 000 Ft /Hó Ár
393446Azonosító
További adatok

Panoráma Kilátás

Új Állapot

Tégla Szerkezet

Hőszivattyú Fűtés

Utcán, közterületen Parkolás

Kiváló Tömegközlekedés

2026 Építés éve

Bvip-004758. Gárdonyban, a Velencei-tó partjától mindössze 100 méterre ÚJ ÉPÍTÉSŰ társasház földszintjén 38m2-es, utcafronti üzlethelyiség/irodahelyiség eladó!

Az ingatlan kiváló elhelyezkedésű: mindössze 100 méterre található a Velencei-tó partjától, valamint a vasúti megálló is pár perc sétatávolságra elérhető.

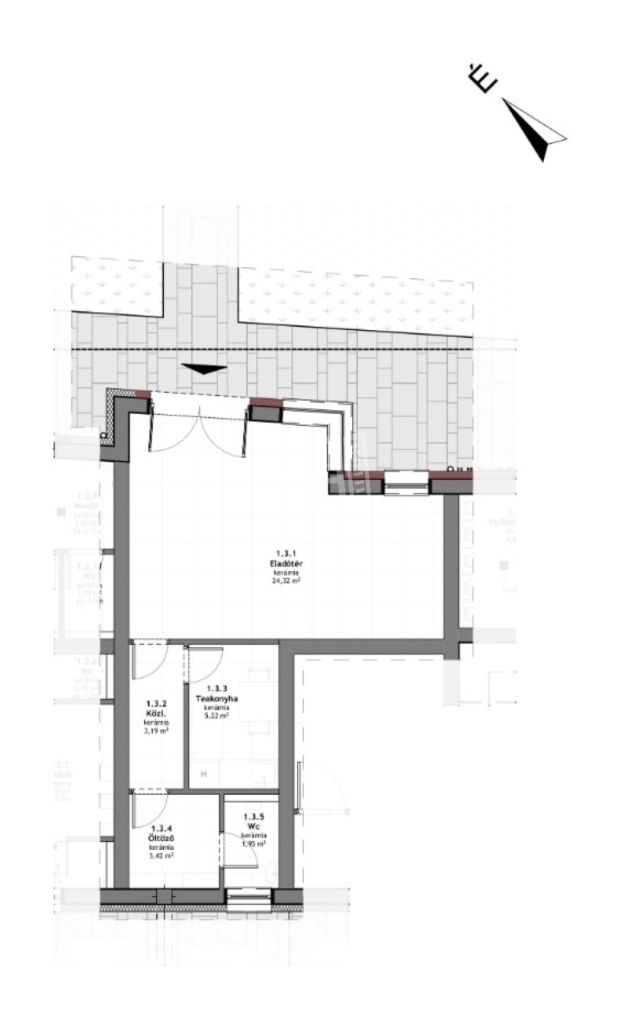
Beltéri elosztás:
Eladótér(nettó) 24,32 m²
Közlekedő(nettó) 3,19 m²
Teakonyha(nettó) 5,22 m²
Öltöző(nettó) 3,42 m²
WC(nettó) 1,93 m²
Összesen38,08 m²

Tájolása: ÉK
Minden közmű önállóan mérhető, fogyasztás alapján fizetendő.
A fűtést hőszivattyú biztosítja padlófűtéses hőleadással, klíma előkészítés kialakított.

Ingyenes parkolási lehetőség rendelkezésre áll a társasház környezetében, illetve lehetőség van felszíni parkolóhely megvásárlására a lakópark területén 2,5 M Ft-tól.

A társasház összesen 12 lakásból és 4 üzlethelyiségből áll –
tervezett műszaki átadás: 2026. szeptember.

Főbb műszaki paraméterek:
– padlófűtés
– klíma előkészítés
– egyéni mérőórák
– minőségi anyagok felhasználása
– felsőkategóriás belsőépítészeti kialakítás
– motoros redőnyök
– nyílászárók 3 rétegű üveggel
– választható hideg- és melegburkolat
– CPL fóliás beltéri ajtó választható színben
(Részletes műszaki leírás kérés esetén elérhető)

Bérleti díja: 220.000,- Ft + Áfa/ hó + rezsiköltség, illetve 2 havi kaució
Az ingatlan meg is vásárolható, eladási ára: 44,5 M Ft +Áfa

Elérhető földszinti, utcafronti irodák/üzlethelyiségek melyek megvásárolhatók, vagy kibérelhetők:
1. számú helyiség: 43m2  Eladási ára: 51.000.000.- forint / Bérleti díja: 250.000,- Ft + Áfa/ hó + rezsiköltség, illetve 2 havi kaució
2. számú helyiség: 127,9m2  Eladási ára: 130.000.000.- forint / Bérleti díja: 540.000,-Ft + Áfa/ hó + rezsiköltség, illetve 2 havi kaució
3. számú helyiség: 38m2  Eladási ára: 44.500.000.- forint / Bérleti díja: 220.000,-Ft + Áfa/ hó + rezsiköltség, illetve 2 havi kaució
4. számú helyiség: 36m2  Eladási ára: 45.000.000.- forint / Bérleti díja: 250.000,-Ft + Áfa/ hó + rezsiköltség, illetve 2 havi kaució

Ha felkeltette érdeklődését, hívja irodánkat bizalommal, éljen ingyenes, személyre szabott hitelügyintézés szolgáltatásunkkal. Segítünk továbbá adásvételhez szükséges ügyvédi közreműködésben, energetikai tanúsítvány, valamint értékbecslés elkészítésében.

For English details please send us a message or an e-mail, thank you.
Ivanics Anita

Ivanics Anita

Hívjon bizalommal

+36-70-743-Mutasd!

További hirdetéseim

Ingatlaniroda
GDN Ingatlanhálózat - A&P Ingatlan
+36-70-743-9189

Küldjön üzenetet

Visszahívást kérek

Hasonló ingatlanok