Kiadó Lakás (téglaépítésű) Székesfehérvár - Hegyalja utca

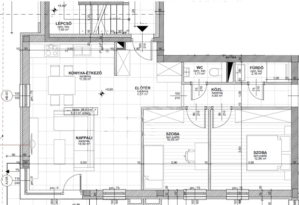
69 m2Alapterület 1 + 2 Szoba
350 000 Ft /Hó Ár
394241Azonosító
További adatok

Utcai Kilátás

Újszerű Állapot

Tégla Szerkezet

7 m2 Erkély/terasz

Házközponti egyedi mérővel Fűtés

Összkomfort Komfort

Saját teremgarázshely Parkolás

Emelet 2

Van Lift

Háziállat Nem

Tömegközlekedés

Amerikai konyhás

Nincs Kertkapcsolat

2021 Építés éve

Közös költség 18 000 Ft

Délkeleti Tájolás

BL-004026. Öreghegyen, társasházban minőségi, modern, világos, tágas lakás, részben bútorozva, részben gépesítve, terasszal, a teremgarázsban és a zárt udvaron lévő beállóhellyel hosszútávra kiadó.

A lakás 69 nm nagyságú, nappali + 2 hálószoba elosztású, erkélye 7 nm nagyságú. A zuhanyzós fürdő és a wc külön helységben található.

A szobák laminált padlóval, egyéb helyiségei új járólappal burkoltak, a falak festettek. A fűtésről és a használati meleg vízről a ház saját kazánja gondoskodik, egyedi méréssel, és a padlón keresztüli hőleadással.

A személyes tárgyak, tisztítószerek tárolására beépített szekrény szolgál. A nyílászárók 3 rétegűek, hő és hangszigeteléssel ellátva, az árnyékolásról távirányítós alumínium redőnyök gondoskodnak. Dohányzás, és háziállat tartása nem megengedett.

A lakás bérleti díja: 350.000 Ft + rezsi

A beköltözéshez 2 havi kaució, első havi bérleti díj, közjegyzői nyilatkozat, valamint közvetítői díj megfizetése szükséges.

Ha felkeltette érdeklődését, hívja irodánkat bizalommal, éljen ingyenes, személyre szabott hitelügyintézés szolgáltatásunkkal. Segítünk továbbá adásvételhez szükséges ügyvédi közreműködésben, energetikai tanúsítvány, valamint értékbecslés elkészítésében.

For english information please send a message.
Ivanics Anita

Ivanics Anita

Hívjon bizalommal

+36-70-743-Mutasd!

További hirdetéseim

Ingatlaniroda
GDN Ingatlanhálózat - A&P Ingatlan
+36-70-743-9189

Küldjön üzenetet

Visszahívást kérek

Hasonló ingatlanok