Eladó Lakás (téglaépítésű) Budapest VII. kerület - Síp utca

87 m2Alapterület 4 Szoba
185 320 000 Ft Ár
393419Azonosító
További adatok

Udvari Kilátás

Újszerű Állapot

Tégla Szerkezet

Elektromos Fűtés

Komfort Komfort

Utcán, közterületen Parkolás

Emelet Félemelet

Nincs Lift

Kiváló Tömegközlekedés

Nem Amerikai konyhás

Nincs Kertkapcsolat

1950 Építés éve

Északkeleti Tájolás

Hitelkalkuláció – a részletekért kattintson valamelyik bank logójára!

Érvényes Airbnb engedéllyel rendelkező befektetési ingatlan eladó a VII. kerületi Síp utcában!

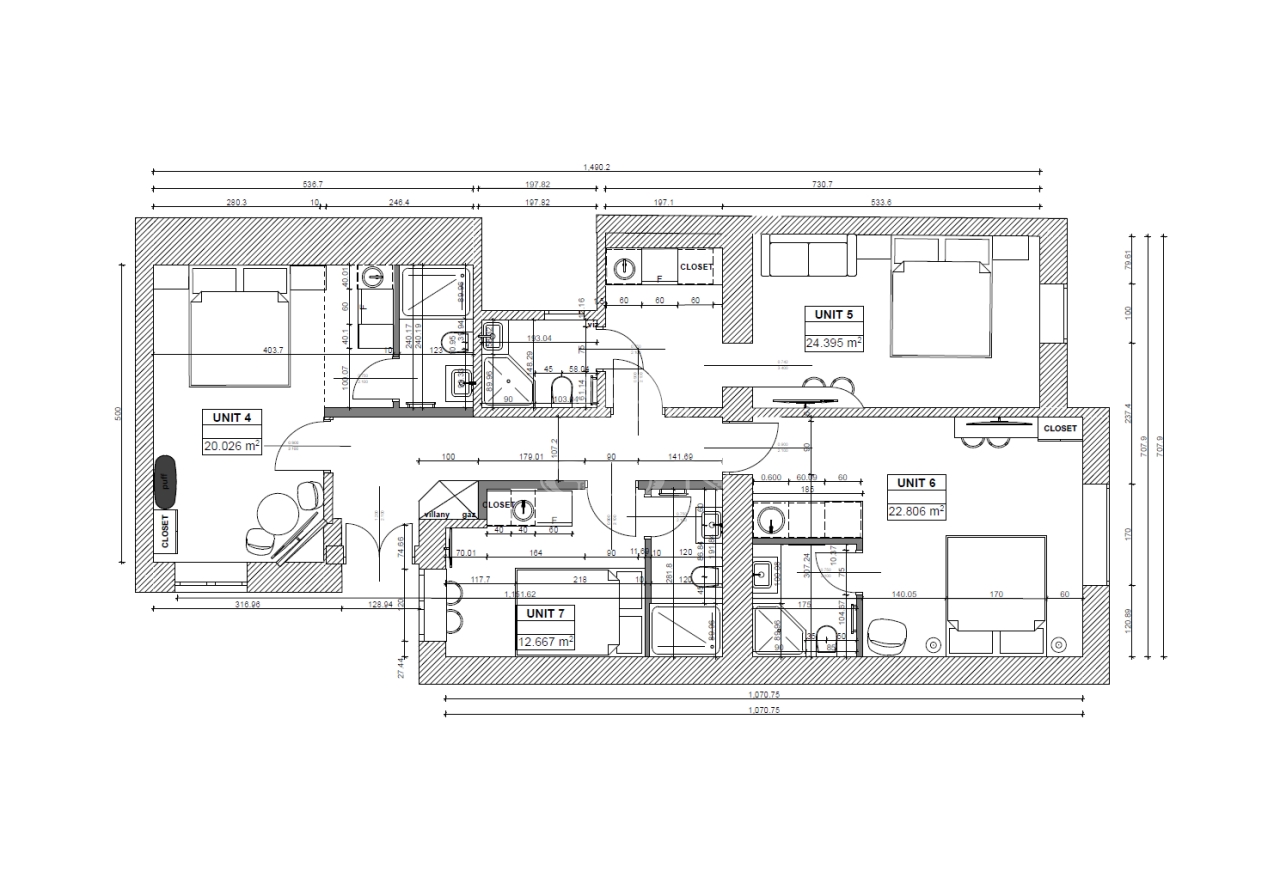
Budapest VII. kerületének frekventált részén, a Síp utcában kínálunk megvételre egy 87 m²-es, félemeleti elhelyezkedésű, felújított ingatlant, amely négy különálló lakrészre lett kialakítva.

Ár: 480.000 EUR (185.320.000 Ft)

Az ingatlan felújítása a közelmúltban fejeződött be, így jelenlegi állapotában azonnal üzemeltethető befektetésként. A kialakítás során négy külön lakóegység került létrehozásra, amelyek mindegyike rendelkezik:

-saját fürdőszobával

-tágas szobával

-konyhasarokkal

A lakás klimatizált, a fűtést elektromos fűtőpanelek biztosítják

Az ablakok világos fényudvarra és belső udvarra néznek, így a lakrészek csendesebb környezetet biztosítanak a belváros nyüzsgése mellett.

Az ingatlan érvényes rövid távú bérbeadási (Airbnb) engedéllyel rendelkezik.

A működési engedély az ingatlan jelenlegi üzemeltetőjének nevére szól. Tulajdonosváltás esetén, amennyiben az üzemeltető személye nem változik, az üzemeltetés a jelenlegi jogszabályi környezetben is zavartalanul folytatható.

Elhelyezkedés:

Központi elhelyezkedésének köszönhetően az ingatlan ideális választás turisták számára:

Étterrmek, bárok, kávézók pár lépésre

Üzletek a közelben

Kiváló tömegközlekedés (villamosok, buszok néhány perc sétára)

Befektetési lehetőség

Az ingatlan jelenleg is rövid távú bérbeadásként üzemel, kiváló kihasználtsággal és jó megtérüléssel, így ideális választás befektetők számára.

További információért keressen bizalommal!

Hívjon még ma, és tekintse meg személyesen!
Ivanics Anita

Ivanics Anita

Hívjon bizalommal

+36-70-743-Mutasd!

További hirdetéseim

Ingatlaniroda
GDN Ingatlanhálózat - A&P Ingatlan
+36-70-743-9189

Küldjön üzenetet

Visszahívást kérek

Hasonló ingatlanok