Eladó Lakás (téglaépítésű) Budapest VII. kerület - Dohány utca

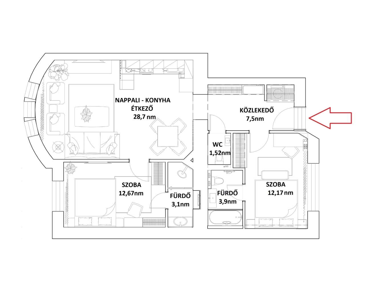
70 m2Alapterület 3 Szoba
159 000 000 Ft Ár
394249Azonosító
További adatok

Utcai Kilátás

Felújított Állapot

Tégla Szerkezet

Gáz (cirkó) Fűtés

Dupla komfort Komfort

Utcán, közterületen Parkolás

Emelet 2

Van Lift

Kiváló Tömegközlekedés

Amerikai konyhás

Nincs Kertkapcsolat

1950 Építés éve

Közös költség 21 000 Ft

Hitelkalkuláció – a részletekért kattintson valamelyik bank logójára!

✨ Exkluzív, kulcsrakész otthon a belváros szívében – ne maradj le! ✨
Budapest pezsgő központjában, a Dohány utca egyik legkeresettebb részén kínálunk megvételre egy 70 m²-es, prémium minőségben felújított lakást, pár lépésre a Blaha Lujza tér forgatagától.

Amit ez az ingatlan nyújt:
Tágas, világos amerikai konyhás nappali, amely a lakás központi élettere
2 külön nyíló hálószoba – ideális családnak vagy befektetésnek
2 teljes értékű fürdőszoba (kádas + zuhanyzós) + külön WC
Átgondolt, praktikus elrendezés a maximális kényelemért

Prémium kivitelezés:
Lakberendező által megálmodott, modern design
Minőségi burkolatok, szaniterek és bútorok
Klíma a nappaliban, redőnyös ablakok
Gazdaságos gázcirkó fűtés, alacsony fenntartási költségek

Elhelyezkedés, ami mindent visz:
A lakás a belső Erzsébetváros szívében található, az Akácfa utca közelében.
Kávézók, éttermek, üzletek és kulturális helyszínek karnyújtásnyira – a városi élet minden előnyével. Kiváló közlekedés: villamos, metró és busz pár perc alatt elérhető.
Irányár: 159 millió Ft (teljes bútorzattal!)

Tökéletes választás saját otthonnak vagy kiemelkedő befektetésnek!
Ne hagyd ki ezt a ritka lehetőséget – vedd fel velünk a kapcsolatot még ma!
Ivanics Anita

Ivanics Anita

Hívjon bizalommal

+36-70-743-Mutasd!

További hirdetéseim

Ingatlaniroda
GDN Ingatlanhálózat - A&P Ingatlan
+36-70-743-9189

Küldjön üzenetet

Visszahívást kérek

Hasonló ingatlanok